
純粹色彩表現空間是主觀的
其中更直接表達了使用者的喜好
藍色
是連結的代表色彩
空間的連結
記憶的連結
情感的連結
也象徵著平和冷靜、優雅永恆的寓意

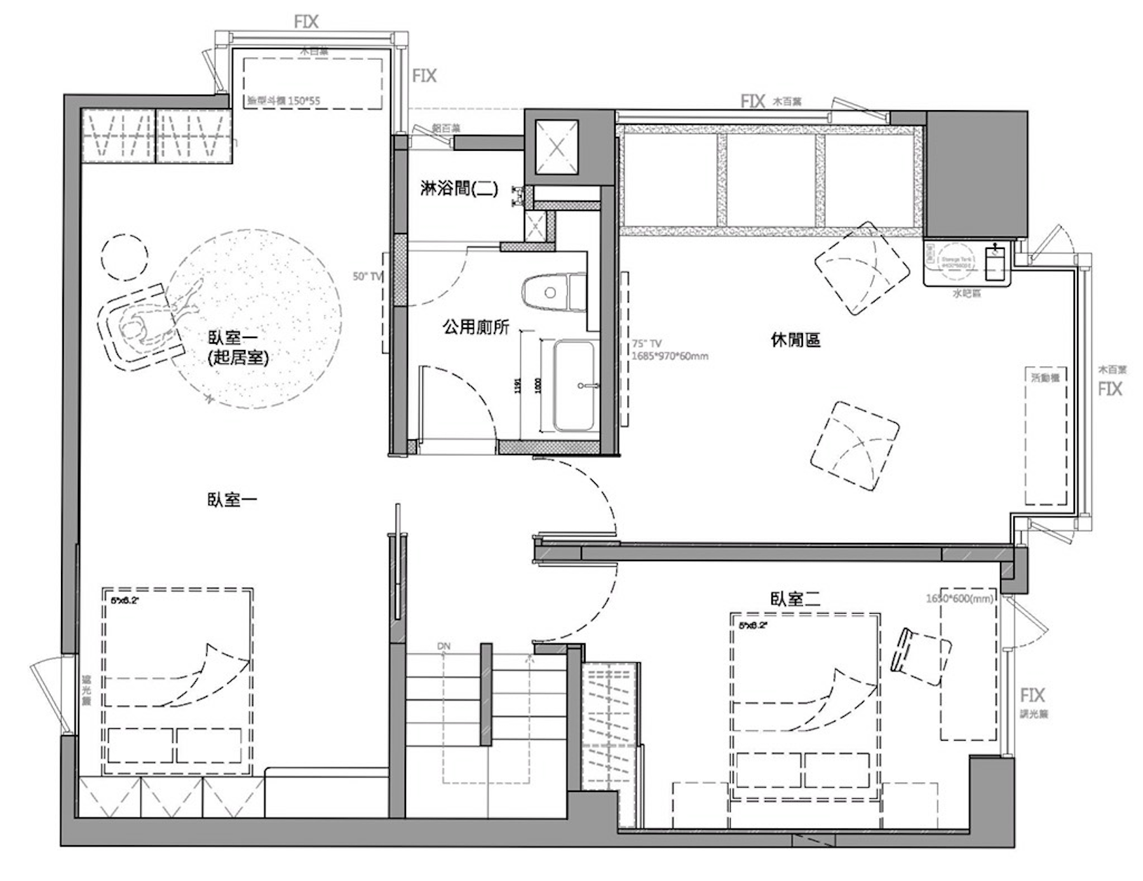
在原有結構的框架下
利用鏡面天花化解低矮的空間限制
並將靠窗的樓板打開
運用透明玻璃樓板
引入大量的自然光線
增加上下樓層串連的趣味性





















–
在轉型成為地產開發商,
專業公設顧問的過程之中,
我們為每一個門廳打造專屬的「空間識別」
–
Add : 台北市松山區延壽街330巷8弄3號
Mail Add : info@xjstudio.com
Tel : 02-2725-1701
FYI
更多作品: xjstudio.com/category/showcase
Facebook
Instagram
pinterest
IMAGE/PHOTO CREDITS: XJstudio & Andy’s Photography