忻悅 Cuore Mio office

忻悅辦公室2

由心出發
紅色律動線條如同血管的串連
透過身體密碼了解個人健康狀態及需求
紅與白簡練的空間色調
強調專業精神及企業色的直接連結

IMG_6437

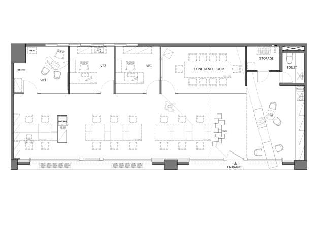
不固定工作座位的配置概念
符合使用者彈性工作時間的需求
強調互動交流的協作空間
並將工作座位區直接照明下移
利用紅色管道整合串連
讓此新創辦公空間
更貼近科技及人性化的使用需求

IMG_6443

IMG_6444

IMG_6446

IMG_6465

IMG_6447

IMG_6448

IMG_6436

 

 

IMG_6463

IMG_6459

IMG_6457

IMG_6454

IMG_6452

IMG_6451

IMG_6450

 

 

IMAGE/PHOTO CREDITS:  XJstudio & Clivelan

 

發表留言