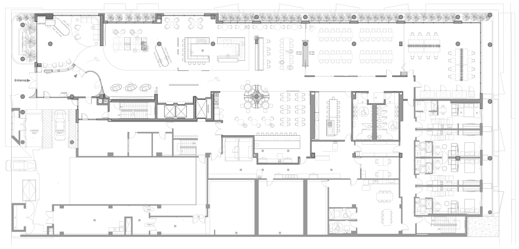
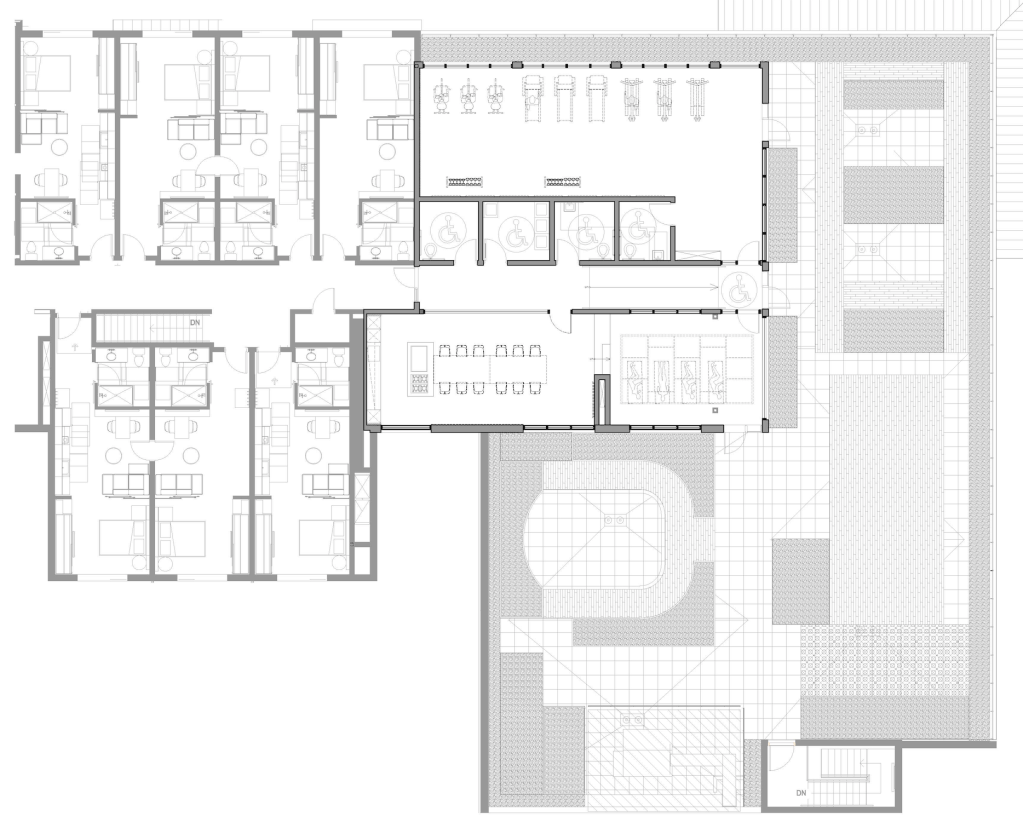
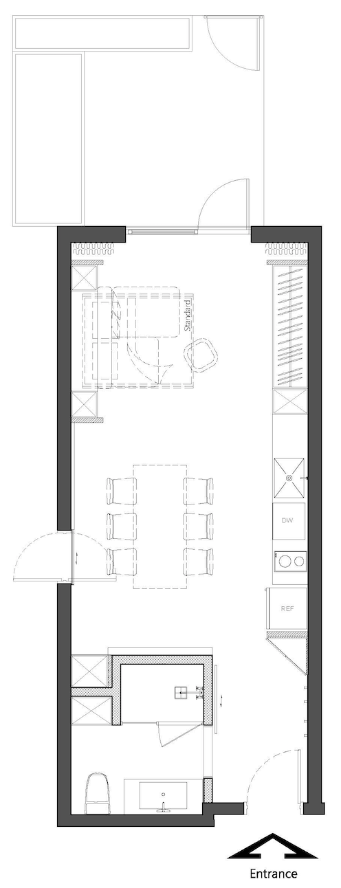
NUOVO 601 HOTEL Seattle, USA by xjstudiopress on 六月 28, 2022六月 28, 2022 分享此文: 分享到 Facebook(在新視窗中開啟) Facebook 分享到 X(在新視窗中開啟) X 以電子郵件將連結傳送給朋友(在新視窗中開啟) 電子郵件 喜歡 正在載入... 文章分頁導航 Previous: 長隆天美(PROCESS)Next: HOTAYI BATU KAWAN Malaysia