
延續建築與自然對話的宗旨
將光線、空氣及綠意帶入室內空間
隱居於田野之間
回家的第一印象
身心靈的共感空間
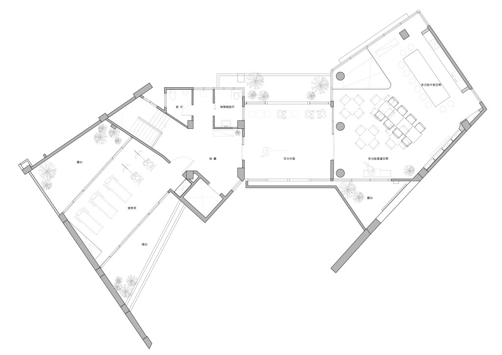
獨棟雙層的公設
基地原型為不等邊畸零形體
一樓大廳以大器的白色銀狐大理石弧形牆面
整合畸零邊角
搭配天花板使用特殊色鋼琴烤漆
讓主牆延伸至天際
繼續跟隨著自然元素
壁面使用溫潤的木皮調和清水模冷靜原始的質地
局部重點區域
鑲上以亮面與霧面不鏽鋼交錯搭配的細部點綴
如同繁星般亮燈閃爍著……..




人字拼中性質樸銀月大理石增加人文質感
像溫暖的布紋理般交織著
迎接賓客與返家人們
同時與錯落的建築體
形成被自然包圍的都市綠洲




上層基地延續著相同元素與設計理念
以空中走廊連接著多功能教室及健身房
花園綠意包圍的健身空間
抬頭可以看見工藝精湛的編織木皮天花
巧妙整合工程細節
表現匠人工藝的極致美感







主要建材:
銀狐光面大理石、銀月仿古面大理石、清水模
不鏽鋼、塗裝木皮、黑鐵烤漆、磐石木地板
波隆毯、鋼琴烤漆、水波玻璃
IMAGE/PHOTO CREDITS:
XJstudio & Andy’s Photography



